top of page
Pescara
Pescara
Cessione del Preliminare
Frazionamento

IN ARRIVO
40-50%
2026
180
8
Anno
Mq
ROI stimato
Mesi stimati
Riepilogo dell'Operazione

Il progetto prevede una ristrutturazione integrale dell’immobile, con nuova distribuzione interna finalizzata al frazionamento in 1 trilocale e 2 bilocali.
L’intervento comprenderà il rifacimento completo degli impianti elettrici e idraulici, con realizzazione di impianti a norma, predisposizione per climatizzazione e miglioramento delle prestazioni energetiche complessive.
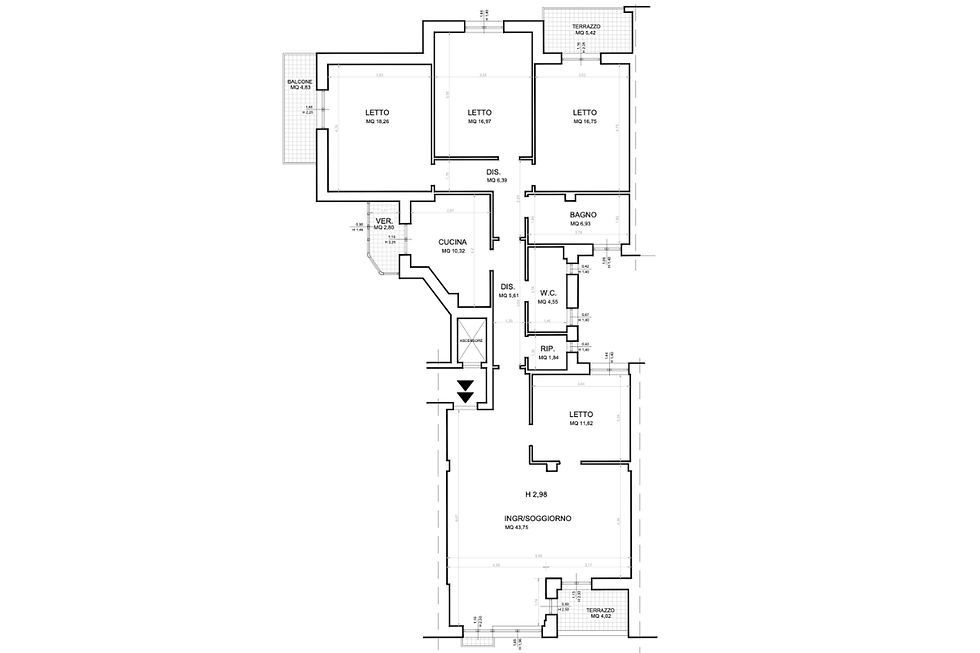
Planimetria
Stato di Fatto

Planimetria stato di fatto.png

Planimetria stato di fatto.png
1/1
Planimetria
Progetto

Planimetria Progetto.png

Planimetria Progetto.png
1/1
Richiedi Informazioni
sul Progetto

Compila il modulo per ricevere informazioni dettagliate sull’operazione e verificare la possibilità di partecipazione
bottom of page