top of page
C.so Galileo Ferraris
Torino
Conclusa
Cessione del Preliminare
43,39 %
2023
137
9
Anno
Mq
Rendimento annuo
Mesi
​Riepilogo dell'Operazione

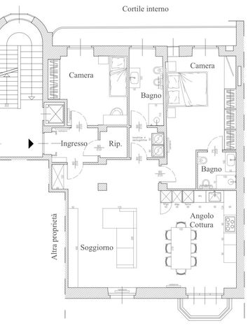
Planimetria
Stato di Fatto

Planimetria prima.jpg

Planimetria prima.jpg
1/1
​Planimetria
Progetto

Planimetria dopo.jpg

Planimetria dopo.jpg
1/1
La trasformazione
dell’immobile
Stato di fatto




1/1
Risultato finale







1/1
Vuoi partecipare alle prossime operazioni ?
Selezioniamo investitori e partner per operazioni di sviluppo immobiliare strutturate.
Accesso su candidatura e valutazione del profilo.

bottom of page